將近九十萬的舊房改造工程,你覺得值嗎?
今天,鼎川別墅圖紙超市要給大家分享的是,有一位朋友,斥資將近九十萬,耗時近半年時間,將自己550平的房子,再加上地窖打造成農村別墅的案例。借此希望能夠幫助到那些需要進行農村建房,農村建別墅的朋友們。
.jpg)
.jpg)
▲效果圖
.jpg)
▲實景圖
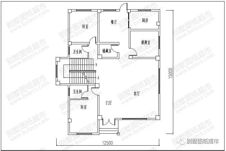
一層布局非常合理,車庫、客廳、餐廳、廚房、儲藏間、臥房,衛生間、門廳應有盡有。臥室和衛生間緊挨在一起、廚房和雜物間緊挨在一起、廚房對著餐廳非常方便,整個布局緊湊而不局促!
.jpg)
一層戶型圖
.jpg)
二層戶型圖
再看立面圖,即使只是張截圖,亦能看出其風采!
.jpg)
由于老房子布局既不合理,又不美觀,賺錢了自然也就追求更高品質的生活了。于是拆掉重做也就水到渠成了!看,這就是拆掉后的地基。
.jpg)
原圖是三層別墅,不過業主根據這個圖加了一個地下室作為家庭影院和地窖用,這樣,房子的防潮性能也更強。不過變成四層別墅,它對基礎的要求也更高了。
整個房子做的是框架結構,基礎一定要做牢固,挖地基一定要挖到硬土層之后再挖20cm,確保地基安全可靠!
.jpg)
雖然條型基礎已經很不錯了,但比起大板基礎來說還是要差一些,曹先生想做的是百年住宅,于是在條形基礎之上,將基礎梁、柱、板整個的現澆成為一個整體。并且在現澆底板混凝土之前,將底板填土充分壓實并整平,這樣,房子的抗震性就得到了充分保障!
.jpg)
因為這個宅基地處于一個山包上,除了基礎本身要做牢固以外,護坡工程也不可忽視,否則若是雨水沖刷或施工擾動造成坍塌,那玩笑就大了!
在這里,需要向大家說明的是,各個地區、各個地形都是千差萬別的,建房過程中一定要根據實際情況做好預防措施。比如地基松軟、高差大,就要采取一些針對性的辦法進行加強,有時候省小錢容易出大事!
.jpg)
這是地下室的施工現場,雖然柱、梁、板的尺寸和配筋作為承重結構已然足夠,但黃先生依然采用強度較高的紅磚作為砌體。不過不得不說的是,無論從經濟角度還是環保角度,紅磚并不值得提倡!
.jpg)
▲地下室施工實景圖
地下室封頂施工,樓板仍然采用整體現澆,樓板里滿布鋼筋網片,和承重梁一起現澆成型。在澆筑過程中要做好鋼筋的保護層,避免銹蝕!
下面是一層的現場施工圖,按照框架結構的施工方法,應該是先將柱、梁、板全部完成之后再填充砌塊墻體。不過農村的施工技術畢竟有限,采用磚混的施工方法,先做墻、再做柱,但是柱子的尺寸和配筋卻是框架結構的標準,這么施工的話也避免了框架結構填充墻體易開裂的問題!
.jpg)
▲一層施工實景圖
雖然這對承重結構的受力體系有一定的影響,但具體問題具體分析,在施工技術有限的情況下,這種工藝還是值得提倡的!
.jpg)
▲地下室和一層施工
一層封頂和地下室封頂沒什么差別,同樣采用整體現澆的施工方法,確保整個房子的整體性!
.jpg)
▲屋面即將封頂
從下面這張剖面圖可以看出,做坡屋頂時要先做一層鋼筋混凝土平板作為天棚,然后再在天棚上支模板澆筑坡屋面。整個坡屋面也要根據圖紙做承重屋架梁!
.jpg)
.jpg)
▲屋架梁配筋和模板
.jpg)
▲坡屋面配筋
屋面封頂完成,整個毛坯房也就完成了!
.jpg)
▲毛坯房背面實景圖
.jpg)
這是雪景圖,是不是挺漂亮的?
.jpg)
▲毛坯房正面實景圖
然后開始做室外裝飾,原設計主要是利用各種顏色的真石漆做裝飾,真石漆施工方便快捷、裝飾效果好、價格便宜,而且不存在脫落傷人的危險。目前城市高層建筑的室外裝飾基本上用的都是這種材料,下圖就是真石漆的裝飾效果圖。
.jpg)
▲真石漆裝飾效果
不過由于業主的個人喜好,做的是瓷磚裝飾。用文化石、瓷磚做外墻,輔以耐水水膩子、涂料,屋面采用波狀琉璃瓦!整體效果漂亮、大方!
.jpg)
▲現場貼瓷磚
.jpg)
▲背面裝飾效果圖
(1).jpg)
▲正面裝飾效果圖
室內裝修暫時還沒做,整個房子加地下室大概是550平米,加上舊房拆遷、附屬工程、主體施工以及現在的室外裝飾,建筑過程已將近6個月了,錢也花了將近90萬!
.jpg)
說實在的,如果找一個專業些的施工隊,前期施工準備工作充分做好,這個工程把房子做到這種程度2個月的時間就足夠了,錢也可以控制在35萬左右!更不用趕上冬季施工,效率低價錢花費也更高!大家覺得呢?
.jpg)
本文由別墅圖紙超市編輯發布,如需了解更多,可登錄網站主頁http://www.titanex.cn/,或者撥打我們的免費電話400-8080-889在線咨詢。
>>>>推薦閱讀:農村別墅設計中的框架結構是什么?有什么特點?
>>>>推薦閱讀:案例分享:三層復式框架結構農村別墅,2款案例驚艷村里人!
>>>>推薦閱讀:農村自建輕鋼別墅,哪種打地基的構造形式更適合?











