10款簡潔大方經濟型三層自建別墅,第1款造價20萬,第6款最漂亮!
有人說,不管在全國哪里的農村,大概只要花費當地城市房價的十分之一就可以建上一棟相當舒適和精致的自建房了。雖然說法有待考究,但農村自建房造價便宜、質量有保證、住著極舒適的這些優點是商品房所無法超越的。所以建一棟精美大氣實用的別墅永遠都是每個人心中夢寐以求的理想家,今天給大家分享10款簡潔大方經濟型三層自建別墅,戶型好易建造!
三層帶大陽臺自建別墅
.jpg)
編號: DC0025
結構形式: 磚混結構
開間: 11.94米 進深: 8.64米
占地面積: 106.89平方米
建筑面積: 290.56平方米
主體造價: 20-24萬
首層戶型:
.jpg)
圖紙預覽:
.jpg)
一 層:堂屋、臥室、廚房、衛生間、雜物間
二 層:客廳(附陽臺)、臥室(附衛生間)、臥室、衛生間
三 層:客廳(附陽臺)、臥室、衛生間、露臺
三層坡屋頂自建別墅
.jpg)
.jpg)
編號: DC0032
結構形式: 框架結構
開間: 14米 進深: 11.2米
占地面積: 156.47平方米
建筑面積: 390.64平方米
主體造價: 30-35萬
首層戶型:
.jpg)
圖紙預覽:
.jpg)
一 層:客廳、臥室(附衣帽間)、廚房、餐廳、儲藏室、衛生間、車庫
二 層:主臥(附衛生間,陽臺)、臥室(附衣帽間)、臥室、衛生間、露臺
三 層:起居室(附書房,衛生間,陽臺)、臥室(附陽臺)、臥室(附衣帽間)、臥室、露臺
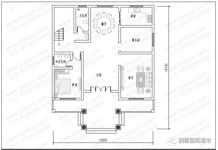
三層帶多個露臺自建別墅
.jpg)
.jpg)
編號: DC0081
結構形式: 磚混結構
開間: 12米 進深: 14.7米
占地面積: 134.97平方米
建筑面積: 449.28平方米
主體造價: 27-34萬
首層戶型:
.jpg)
圖紙預覽:
.jpg)
一 層:大堂、客廳、臥室(附衛生間)、娛樂房、廚房、餐廳、衛生間
二 層:起居室(附露臺)、臥室(附衛生間,露臺)、臥室(附露臺)、臥室、書房、衛生間
三 層:活動室(附露臺)、2臥室、書房、衛生間、陽臺
三層自建單體別墅
.jpg)
.jpg)
編號: DC0086
結構形式: 框架結構
開間: 11.5米 進深: 12.5米
占地面積: 122.7平方米
建筑面積: 317.1平方米
主體造價: 26-32萬
首層戶型:
.jpg)
圖紙預覽:
.jpg)
一 層:玄關、客廳、臥室、廚房、餐廳、衛生間、室內景觀、車庫
二 層:臥室(附書房)、臥室(附衛生間)、臥室、娛樂室(附陽臺)、衛生間
三 層:客廳、主臥(附書房,衛生間,陽臺)、露臺
新農村三層房屋帶車庫
.jpg)
編號: DC0123
結構形式: 磚混結構
開間: 11.2米 進深: 11.7米
占地面積: 125.7平方米
建筑面積: 305.12平方米
主體造價: 20-25萬
首層戶型:
.jpg)
圖紙預覽:
.jpg)
一 層:客廳(中空)、臥室、廚房、餐廳、衛生間、車庫
二 層:客廳、臥室(附陽臺)、2臥室、書房、衛生間
三 層:臥室(附書房)、2臥室、衛生間、露臺
農村實用三層帶露臺別墅
.jpg)
.jpg)
編號: DC0251
結構形式: 框架結構
開間: 12.8米 進深: 10.8米
占地面積: 118.34平方米
建筑面積: 301.42平方米
主體造價: 25-30萬
首層戶型:
.jpg)
圖紙預覽:
.jpg)
一 層:客廳、臥室(附衣帽間)、臥室、廚房、餐廳、衛生間
二 層:小客廳、臥室(附陽臺)、2臥室、衣帽間、書房、衛生間
三 層:臥室(附衣帽間,書房,化妝間,衛生間,陽臺)、露臺
框架結構三層帶露臺別墅
.jpg)
編號: DC0245
結構形式: 框架結構
開間: 12.2米 進深: 13.5米
占地面積: 146.12平方米
建筑面積: 405.58平方米
主體造價: 34-40萬
首層戶型:
.jpg)
圖紙預覽:
.jpg)
一 層:客廳、臥室(附衛生間)、臥室、棋牌室、廚房、餐廳(附景觀陽臺)、衛生間
二 層:起居室(附陽臺)、茶廳(附陽臺)、臥室(附陽臺)、臥室(附衛生間)、2臥室、書房、衛生間
三 層:健身房(附露臺)、臥室(附衛生間,露臺)、2臥室、書房、衛生間
三層帶露臺別墅圖紙
.jpg)
編號: DC0281
結構形式: 框架結構
開間: 12.9米 進深: 10.8米
占地面積: 130.4平方米
建筑面積: 353平方米
主體造價: 30-36萬
首層圖紙:
.jpg)
圖紙預覽:
.jpg)
一 層:玄關、客廳、臥室、棋牌室、廚房、餐廳、衛生間
二 層:客廳、休息區(附陽臺)、4臥室、衛生間
三 層:客廳、3臥室、衛生間、露臺
簡單時尚三層復式別墅
.jpg)
.jpg)
編號: DC0292
結構形式: 框架結構
開間: 12米 進深: 12米
占地面積: 135.42平方米
建筑面積: 366.13平方米
主體造價: 30-35萬
首層戶型:
.jpg)
圖紙預覽:
.jpg)
一 層:過廳、客廳(中空)、2臥室、廚房、餐廳、衛生間
二 層:客廳、2臥室(附陽臺)、2臥室、衛生間
三 層:客廳、臥室(附陽臺)、3臥室、衛生間、露臺
大氣的三層歐式別墅
.jpg)
編號: DC0297
結構形式: 框架結構
開間: 13.8米 進深: 10.5米
占地面積: 144.58平方米
建筑面積: 456.42平方米
主體造價: 40-45萬
首層戶型:
.jpg)
圖紙預覽:
.jpg)
一 層:堂屋、客廳、臥室(附衛生間)、臥室、廚房、餐廳、衛生間
二 層:起居室、臥室(附衛生間)、3臥室、書房、棋牌室、衛生間、陽臺
三 層:起居室、臥室(附衛生間)、臥室、娛樂室、衛生間、露臺
在自己的家鄉和家人在漂亮的大房子里一起享受美好的生活,這是多么美好的一件事。
.jpg)
本文由別墅圖紙超市編輯發布,如需了解更多,可登錄網站主頁http://www.titanex.cn/,或者撥打我們的免費電話400-8080-889在線咨詢。
>>>>推薦閱讀:精選8款造價25萬左右農村自建別墅,花最少的錢建最好的房子!
>>>>推薦閱讀:13款大氣實用易建造的農村自建別墅戶型,有你喜歡的嗎?
>>>>推薦閱讀:一款美觀經濟又實惠的一層帶閣樓農村自建別墅











