10款經典火爆的農村自建別墅,建成后的實物圖比效果圖還美!
有很多朋友感到好奇!說為什么我們發了這么多農村別墅效果圖紙,卻不發一發建成后實拍的照片,是不是差很多?在網上買東西大家都喜歡看買家秀,畢竟賣家秀有時候過度美化,實際的產品和圖片根本不一樣,也就造就了賣家秀VS買家秀一系列的笑話。小編很委屈啊!一個不留意就給大家造成這一系列的誤會,所以今天帶來10套農村別墅效果圖和實拍圖的對比,大家看看到底差的多不多!
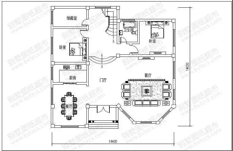
大氣三層復式帶大露臺別墅
建成實拍
編號: DC0001
結構形式: 框架結構
開間: 13.3米 進深: 14.6米
占地面積: 147.7平方米
建筑面積: 366.4平方米
主體造價: 34-40萬
首層戶型:
圖紙預覽:
一 層:入口玄關、客廳、餐廳、廚房、客房、衛生間、車庫
二 層:臥室、臥室(附陽臺)、臥室(附書房,衛生間,陽臺)、衛生間
三 層:活動廳(附露臺)、臥室、臥室(附露臺)、臥室(附書房,衛生間,陽臺)、衛生間
二層半多窗帶露臺自建別墅
建成實拍
首層戶型:
圖紙預覽:
一 層:客廳(中空)、臥室(附衛生間)、臥室、棋牌室、廚房、餐廳、衛生間
二 層:起居室、臥室(附衣帽間,衛生間)、2臥室、衛生間
三 層:家庭影院(附露臺)、臥室、洗衣房、露臺
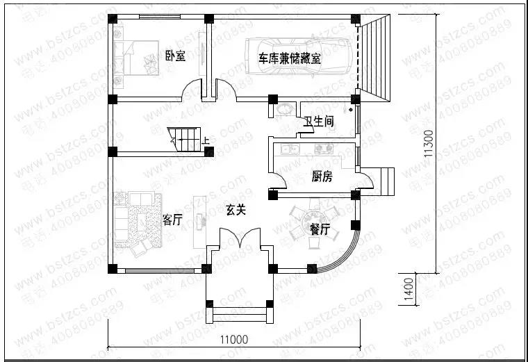
一層帶閣樓自建別墅
建成實拍
編號: DC0189
結構形式: 磚混結構
開間: 14.04米 進深: 11.34米
占地面積: 144.36平方米
建筑面積: 210.69平方米
主體造價: 16-20萬
首層戶型:
圖紙預覽:
一 層:客廳、臥室(附衛生間)、2臥室、廚房、餐廳、衛生間
閣 樓:臥室、雜物間
農村三層帶旋轉樓梯別墅
建成實拍
編號: DC0219
結構形式: 框架結構
開間: 11.7米 進深: 12米
占地面積: 138.16平方米
建筑面積: 352.46平方米
主體造價: 30-35萬
首層戶型:
圖紙預覽:
一 層:客廳、臥室(附衛生間)、臥室、廚房、餐廳、衛生間
二 層:客廳、臥室(附衛生間)、臥室、兒童房、棋牌室、衛生間、露臺
三 層:臥室(附書房)、臥室、衛生間、露臺
三層框架結構歐式別墅
建成實拍
編號: DC0180
結構形式: 框架結構
開間: 14.4米 進深: 14.02米
占地面積: 186平方米
建筑面積: 476平方米
主體造價: 42-48萬
首層戶型:
圖紙預覽:
一 層:客廳、2臥室、儲藏室、廚房、餐廳、衛生間
二 層:健身房(附陽臺)、臥室(附衣帽間,衛生間)、臥室(附衛生間)
三 層:主臥(附衣帽間,衛生間)、臥室(附衣帽間,衛生間)、臥室(附衛生間)、書房、兒童房(附露臺)
復式三層帶車庫簡歐小別墅
建成實拍
編號: DC0229
結構形式: 磚混結構
開間: 11.7米 進深: 11.1米
占地面積: 125.93平方米
建筑面積: 303.96平方米
主體造價: 24-28萬
首層戶型:
圖紙預覽:
一 層:客廳(中空)、臥室、廚房、餐廳、衛生間、車庫
二 層:小客廳、臥室(附陽臺)、2臥室、衛生間
三 層:小客廳、臥室(附陽臺)、2臥室、衛生間、露臺
農村三層帶車庫自建房
建成實拍
編號: DC0256
結構形式: 磚混結構
開間: 14米 進深: 8米
占地面積: 115.12平方米
建筑面積: 296.57平方米
主體造價: 22-26萬
首層戶型:
圖紙預覽:
一 層:客廳、臥室、廚房、餐廳、衛生間、車庫(兼儲藏室)
二 層:客廳、休息區、臥室(附露臺)、3臥室、衛生間
三 層:3臥室、衛生間、2露臺
豪華三層復式雙拼別墅
建成實拍
編號: DC0284
結構形式: 框架結構
開間: 23.2米 進深: 12.1米
占地面積: 274.14平方米
建筑面積: 732.07平方米
主體造價: 50萬以上
首層戶型:
圖紙預覽:
一 層:客廳(中空)、老人房(附衛生間)、臥室、廚房、餐廳、衛生間
二 層:起居室、主臥(附衛生間,陽臺)、2臥室、書房、衛生間
三 層:健身房、主臥(附衛生間,陽臺)、臥室、衛生間、露臺
漂亮實用三層簡歐小別墅
建成實拍
編號: DC0243
結構形式: 框架結構
開間: 11米 進深: 11.3米
占地面積: 120.85平方米
建筑面積: 307.63平方米
主體造價: 25-32萬
首層戶型:
圖紙預覽:
一 層:客廳、臥室、廚房、餐廳、衛生間、車庫或儲藏室
二 層:客廳、臥室(附衛生間)、2臥室、書房(附陽臺)、衛生間、陽臺
三 層:2臥室(附衛生間)、露臺
大氣三層旋轉樓梯復式客廳別墅
建成實拍
編號: DC0226
結構形式: 框架結構
開間: 13.6米 進深: 14.6米
占地面積: 156.09平方米
建筑面積: 393.15平方米
主體造價: 36-42萬
首層戶型:
圖紙預覽:
一 層:入口玄關、客廳(中空)、臥室、廚房、餐廳、衛生間、車庫
二 層:主臥(附書房,衛生間,陽臺)、臥室(附書房,陽臺)、臥室、衛生間
三 層:活動廳(附露臺)、主臥(附衛生間,2露臺)、臥室(附書房,陽臺)、臥室、衛 生間
每天都有不少業主給小編留言,看到很多很漂亮的別墅效果圖,但又擔心施工隊建不出這個效果,找個普普通通的造型,心里又不甘心。現在看到上面這10款自建別墅的效果圖和建成實拍,是不是再也不用擔心了!
.jpg)
本文由別墅圖紙超市編輯發布,如需了解更多,可登錄網站主頁http://www.titanex.cn/,或者撥打我們的免費電話400-8080-889在線咨詢。
>>>>推薦閱讀:10款進深12米農村別墅,不可錯過的戶型,蓋一棟值了!
>>>>推薦閱讀:10款戶型嚴謹私密性強的農村別墅,布局必須給滿分!
>>>>推薦閱讀:10套真正實用的農村自建房,每套都是經典!











