建房自述:離家20多年,風光返鄉建別墅,65萬建好獲全村人點贊!
20多年離開農村的時候,還只是20出頭,一晃眼已經45歲了。在外漂泊這多年,打過工,做過小生意,失敗過,也得意過。隨著年紀越來越大,越想回老家來。老家的房子倒了后,沒辦法,只好回村自建房。找了很多戶型,而這款最符合我的要求,方方正正,看過網友建的案例,也都很漂亮,于是開始踏入建房大軍。
效果圖
很經典的一款圖紙,四面都有亮點。
此款圖紙編號: DC0142,框架結構,開間12.5米,進深15米,占地面積160.8平方米,建筑面積450平方米,主體造價為38-45萬。
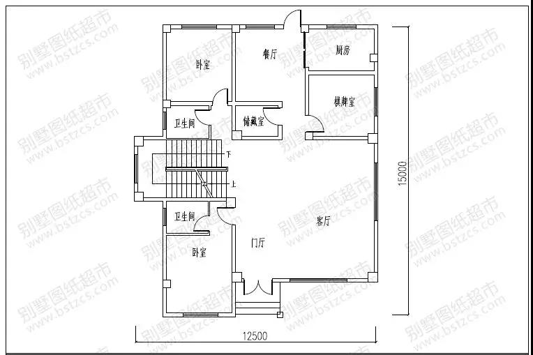
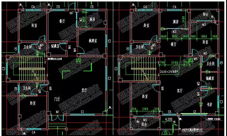
平面圖
首層戶型
一 層:客廳、臥室(附衛生間)、臥室、棋牌室、廚房、餐廳、儲藏室、衛生間
二 層:客廳、臥室(附衛生間,陽臺)、臥室(附陽臺)、臥室、書房、廚房、餐廳、儲藏室、衛生間
三 層:會客廳、臥室(附陽臺,露臺)、臥室、涼亭、衛生間
施工過程
地基前面是水田,左邊是空地,右邊后邊都有房屋。
二層樓面裝模基本完成
主體快完工了
外墻批蕩
澆灌屋頂
封頂大吉
天氣太熱,工期延長,外墻磚貼了一部分。
外墻完工了,開姓整院子。
不銹鋼院門
完工后的效果圖
歷時一年多,主體加外墻和院子花了65萬,做雜屋,基礎就花了12萬,還有室內軟裝加家具等一共將近百萬。
.jpg)
本文由別墅圖紙超市編輯發布,如需了解更多,可登錄網站主頁http://www.titanex.cn/,或者撥打我們的免費電話400-8080-889在線咨詢。
>>>>推薦閱讀:二層半小別墅,75萬建好還帶室內外裝修,值得一看!
>>>>推薦閱讀:分享50歲大爺回鄉自建三層框架結構房過程,附室內裝修效果圖
>>>>推薦閱讀:【自建房案例】網友30萬蓋三層自建房,建成效果讓鄰居紛紛仿建!











