案例:8款多臥室帶露臺小別墅,第7套更有9室,建了即賺了
農村建房相對城里買房,不僅有花費小,并且有足夠大的空間優勢,不同于城市的蝸居生活那么擁擠,農村建房每個功能區域都顯得寬敞而舒適。平時家里來了親戚朋友都會有足夠多的房間居住,想想都覺得舒適又熱鬧。下面就分享幾款房間超多還帶露臺的小別墅,外觀時尚,戶型周正,性價比高,建了絕對是賺了。
編號:DC0004

層數: 三層
結構形式: 磚混結構
主體造價: 25-30萬
開間: 11米
進深: 11米
占地面積: 126.34平方米
建筑面積: 342.86平方米

布局說明
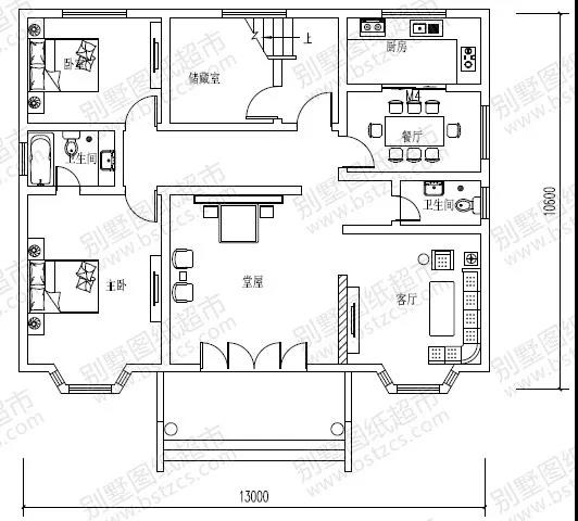
一 層: 客廳、臥室、廚房、餐廳、洗衣房、衛生間
二 層: 起居室、臥室(附陽臺)、臥室(附衛生間)、臥室、棋牌室(附陽臺)、衛生間
三 層: 娛樂廳、臥室(附陽臺)、臥室、衛生間、露臺
建房案例

建房案例說明
案例外觀和效果圖高度還原,墻磚顏色很別致,整棟房子外墻在選色方面比較簡單,但是有不會顯得單調,反而更顯時尚
白色寬敞的門斗特別顯眼,襯托出了房子的大氣感
大露臺,時尚的落地窗也是現代農村房子的標配
編號: DC0028

層數: 三層
結構形式: 磚混結構
主體造價: 22-26萬
開間: 11.5米
進深: 10.5米
占地面積: 121.03平方米
建筑面積: 312.31平方米

布局說明
一 層: 堂屋、客廳、老人房(附衛生間)、娛樂室、廚房、餐廳、農具間、衛生間
二 層: 客廳、2臥室(附陽臺)、2臥室、2衛生間
三 層: 2臥室(附陽臺)、臥室、衛生間、露臺
建房案例

建房案例說明
房子在造型和配色方面極度講究,低調的外墻配色,加上大面積的藍色玻璃,十分的搶眼
房子在造型方面做了細微的調整,但是并不影響房子的氣質和氣場,反而更加精致
農村房子然后加個小院子,生活舒適又充滿詩意的美,自在浪漫
編號: DC0066

層數: 三層
結構形式: 磚混結構
主體造價: 26-32萬
開間: 11.7米
進深: 11.4米
占地面積: 138.98平方米
建筑面積: 376.37平方米

布局說明
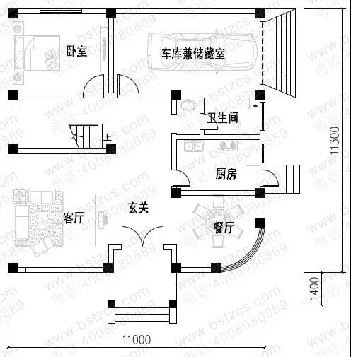
一 層: 客廳、臥室(附衛生間)、臥室、廚房、餐廳、衛生間、車庫
二 層: 客廳、臥室(附陽臺)、臥室(附衛生間)、3臥室、衛生間
三 層: 客廳、臥室(附衛生間)、2臥室、衛生間、露臺
建房案例

建房案例說明
此別墅戶型比較方正,四面通透,居住良好,并且帶車庫和大露臺
不管從外觀還是造型,案例的還原度都很高,并且功能分區合理,居住方便,非常顯精致
門斗很寬敞大氣,是一款很適合農村審美和生活的小別墅
編號: DC0080

層數: 四層
結構形式: 框架結構
主體造價: 40-50萬
開間: 11.7米
進深: 12.9米
占地面積: 120.1平方米
建筑面積: 316.66平方米

布局說明
一 層: 玄關、客廳、臥室、廚房、餐廳、2衛生間、車庫(附儲藏間)
二 層: 臥室(附衛生間,陽臺)、臥室、衛生間
三 層: 臥室(附更衣間,衛生間,陽臺)、臥室(附書房)、臥室、娛樂室(附露臺)、衛生間
四 層: 多功能廳(附陽臺)、露臺
建房案例

建房案例說明
案例建出來很有現代的時尚感,從外觀看上去,和效果圖的感覺完全不同,但是卻意外的和諧好看
外墻配色低調而更顯高貴,在窗戶的選擇上修飾了整棟房子,加強了別墅的是現代感
很容易看出,建房案例在造型上和效果圖基本一致,只是在外墻配色上別具一格,建出了不一樣的效果,但是感官卻格外出色
編號: DC0186

層數: 二層帶閣樓
結構形式: 磚混結構
主體造價: 23-28萬
開間: 13米
進深: 10.6米
占地面積: 137.9平方米
建筑面積: 272.7平方米

布局說明
一 層: 堂屋、客廳、主臥(附衛生間)、臥室、廚房、餐廳、儲藏室、衛生間
二 層: 客廳(附陽臺)、主臥(附衛生間)、3臥室、衛生間
閣 樓: 儲藏間
建房案例

建房案例說明
寬大的門斗,大氣的羅馬柱凈顯歐式的霸氣和時尚
在配色上采用的是黃色的基調,再加上白色作為點綴,淡雅經典
窗戶的造型和屋頂的老虎窗更顯房子的立體感
編號: DC0219

層數: 三層
結構形式: 框架結構
主體造價: 30-35萬
開間: 11.7米
進深: 12米
占地面積: 138.16平方米
建筑面積: 352.46平方米

布局說明
一 層: 客廳、臥室(附衛生間)、臥室、廚房、餐廳、衛生間
二 層: 客廳、臥室(附衛生間)、臥室、兒童房、棋牌室、衛生間、露臺
三 層: 臥室(附書房)、臥室、衛生間、露臺
建房案例

建房案例說明
建房案例和效果圖高度一致,淺黃色的外墻俏皮又亮麗,再加上弧形的落地窗,完美的融合
屋頂鋪蓋藍色琉璃瓦,門斗采用白色羅馬柱,加上金色的山花,精致又浪漫
多窗多露臺,通風與光線充足,彰顯歐式風格,很適合農村建造
編號: DC0316

層數: 三層
結構形式: 框架結構
主體造價: 44-50萬
開間: 14.7米
進深: 11.1米
占地面積: 154.95平方米
建筑面積: 487.39平方米

布局說明
一 層: 門廳、客廳(中空)、臥室(附衛生間)、臥室、棋牌室、廚房、餐廳、衛生間
二 層: 起居室、主臥(附書房,衣帽間,衛生間,陽臺)、2臥室、衛生間
三 層: 健身廳、臥室(附陽臺)、臥室(附衣帽間)、2臥室、衛生間、陽臺
頂 層: 露臺
建房案例

建房案例說明
簡約而精致,素雅而非凡,用純凈的建筑元素,傳遞出恬淡的觀感氛圍。
造型精致大方,立體感十足,凸顯美學感,有著驚艷的視覺效果。超大的落地窗,很氣派,整個房子有一種穩重感。
整套房子包含9個臥室,寬敞舒適,適合成員比較多的家庭建
編號: DC0243

層數: 三層
結構形式: 框架結構
主體造價: 25-32萬
開間: 11米
進深: 11.3米
占地面積: 120.85平方米
建筑面積: 307.63平方米

布局說明
一 層: 客廳、臥室、廚房、餐廳、衛生間、車庫或儲藏室
二 層: 客廳、臥室(附衛生間)、2臥室、書房(附陽臺)、衛生間、陽臺
三 層: 2臥室(附衛生間)、露臺
建房案例

建房案例說明
不像一般的房子那樣中規中矩,此款小別墅造型獨特、時尚,很有魅力,年輕人尤為喜愛
一層、二層采用不同的外墻裝飾,層次分明,凸顯立體感
弧形的大面積窗戶、超大的露臺都為此款小別墅增加了大氣感和舒適感
現代的建筑手法,時尚而別致,讓別墅煥發出新的生機與活力。
.jpg)
本文由別墅圖紙超市編輯發布,如需了解更多,可登錄網站主頁http://www.titanex.cn/,或者撥打我們的免費電話400-8080-889在線咨詢。
>>>>推薦閱讀:15款建房案例:一款更比一款美,下半年農村建房就照著這樣建!
>>>>推薦閱讀:復式客廳還帶閣樓,這款農村二層別墅詮釋了低調的奢華!
>>>>推薦閱讀:【新品】11×11米,三層小別墅,6間臥室+大露臺功能齊全!











