13套新農村別墅,沉穩大氣有內涵,建房好戶型!
很多人認為農村建房子都是照葫蘆畫瓢,誰家房子建得還行,叫包工頭去看看,建個一樣的就行了,根本沒有“設計”這個概念。花了幾十萬重建的房子,卻還和幾十年前的房子一樣,實在是太可惜了!其實想要建一棟體面而又大氣的別墅,一份合理的農村自建別墅設計圖也是必不可少的!下面這13套新農村別墅,沉穩大氣有內涵,建房好戶型!
大氣實用的二層別墅

編號: DC0331
結構形式: 框架結構
主體造價: 38-43萬
開間: 16.2米 進深: 11.4米
占地面積: 177.43平方米
建筑面積: 424.29平方米
首層戶型:

二層戶型:

一 層:門廳、客廳(附觀景臺)、臥室(附衛生間)、2臥室、廚房、餐廳、衛生間
二 層:起居室(附觀景臺)、臥室(附書房,衛生間,陽臺)、臥室(附陽臺)、3臥室、衛生間
三層半農村大氣別墅

編號: DC0003
結構形式: 框架結構
主體造價: 40-50萬
開間: 11.7米 進深: 12.9米
占地面積: 120.1平方米
建筑面積: 316.66平方米
首層戶型:

一 層:玄關、客廳、臥室、廚房、餐廳、2衛生間、車庫(附儲藏間)
二 層:臥室(附衛生間,陽臺)、臥室、衛生間
三 層:臥室(附更衣間,衛生間,陽臺)、臥室(附書房)、臥室、娛樂室(附露臺)、衛生間
四 層:多功能廳(附陽臺)、露臺
三層帶屋頂平臺歐式別墅

編號: DC0316
結構形式: 框架結構
主體造價: 44-50萬
開間: 14.7米 進深: 11.1米
占地面積: 154.95平方米
建筑面積: 487.39平方米
首層戶型:

一 層:門廳、客廳(中空)、臥室(附衛生間)、臥室、棋牌室、廚房、餐廳、衛生間
二 層:起居室、主臥(附書房,衣帽間,衛生間,陽臺)、2臥室、衛生間
三 層:健身廳、臥室(附陽臺)、臥室(附衣帽間)、2臥室、衛生間、陽臺
頂 層:露臺
三層大氣旋轉樓梯復式別墅



編號: DC0216
結構形式: 框架結構
主體造價: 35-40萬
開間: 12.9米 進深: 9.8米
占地面積: 124.19平方米
建筑面積: 337.42平方米
首層戶型:

一 層:門廳、客廳(中空)、2臥室、廚房、餐廳、衛生間
二 層:起居室、2臥室、棋牌室、衛生間
三 層:主臥(附書房,衣帽間,衛生間,陽臺)、臥室、洗衣房、衛生間、露臺
三層帶內院現代風格小別墅




編號: DC0307
結構形式: 框架結構
主體造價: 35-40萬
開間: 13.5米 進深: 14.7米
占地面積: 99.72平方米
建筑面積: 352.87平方米
首層戶型:

一 層:花園(內院)、2臥室、廚房、餐廳、衛生間
二 層:客廳、臥室(附書房,陽臺)、2臥室、衛生間
三 層:2臥室、衛生間、露臺
三層帶露臺歐式別墅



編號: DC0218
結構形式: 框架結構
主體造價: 35-42萬
開間: 11.8米 進深: 12.5米
占地面積: 134.94平方米
建筑面積: 360.63平方米
首層戶型:

一 層:客廳(中空)、臥室(附衛生間)、棋牌室、廚房、餐廳、衛生間
二 層:會客廳(附露臺)、多功能廳、臥室(附衛生間)、2臥室、衛生間
三 層:多功能廳、棋牌室、臥室(附衛生間)、2臥室、衛生間、露臺
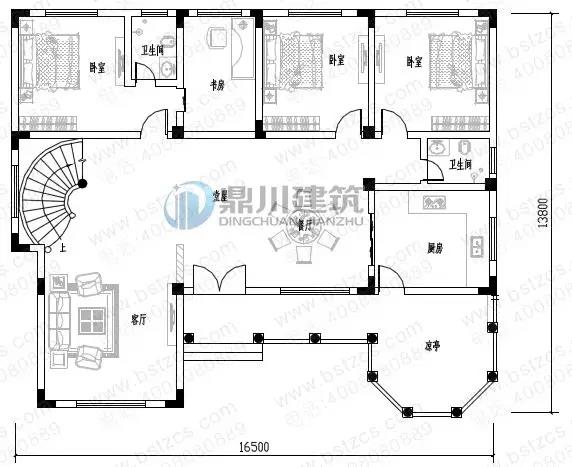
復式三層旋轉樓梯別墅

編號: DC0326
結構形式: 框架結構
主體造價: 50萬以上
開間: 16.5米 進深: 13.8米
占地面積: 229.61平方米
建筑面積: 486.15平方米
首層戶型:

一 層:堂屋、客廳(中空)、臥室(附書房,衛生間)、2臥室、廚房、餐廳、衛生間、涼亭
二 層:起居室(附露臺)、臥室(附衛生間)、2臥室、衛生間、露臺
三 層:健身廳、2臥室、衛生間、2露臺
三層復式豪華別墅


編號: DC0011
結構形式: 框架結構
主體造價: 50萬以上
開間: 15米 進深: 13.2米
占地面積: 165.47平方米
建筑面積: 548.51平方米
首層戶型:

一 層:客廳(中空)、臥室(附衛生間)、臥室、廚房、餐廳、衛生間
二 層:起居室、2臥室(附衛生間)、衛生間、露臺
三 層:主臥(附更衣室,衛生間)、2臥室(附衛生間)、露臺
漂亮的三層復式別墅

編號: DC0217
結構形式: 框架結構
主體造價: 35-40萬
開間: 11.94米 進深: 13.64米
占地面積: 150.77平方米
建筑面積: 398.05平方米
首層戶型:

一 層:客廳、休閑廳(中空)、臥室、廚房、餐廳、儲藏室、衛生間
二 層:主臥(附衣帽間,衛生間)、2臥室、衛生間
三 層:活動室、2臥室、書房、衛生間、露臺
四層帶露臺大氣豪華別墅

編號: DC0018
結構形式: 框架結構
主體造價: 50萬以上
開間: 11.1米 進深: 15.7米
占地面積: 158.52平方米
建筑面積: 543.98平方米
首層戶型:

一 層:客廳(中空)、臥室(附衛生間)、棋牌室、廚房、餐廳、衛生間、車庫
二 層:起居室、臥室(附衛生間,陽臺)、2臥室、書房(附陽臺)、衛生間
三 層:影音室(附陽臺)、臥室(附衛生間)、2臥室、書房(附陽臺)、衛生間
四 層:臥室(附衛生間)、臥室、娛樂間(附露臺)、衛生間、露臺
三層復式帶車庫歐式別墅


編號: DC0248
結構形式: 框架結構
主體造價: 45-50萬
開間: 15米 進深: 11.4米
占地面積: 151.84平方米
建筑面積: 383.9平方米
首層戶型:

一 層:玄關、客廳(中空)、臥室、廚房、餐廳、衛生間、車庫
二 層:休息廳、臥室(附衛生間,陽臺)、臥室(附陽臺)、臥室、衛生間
三 層:客廳(附露臺)、臥室(附衛生間,陽臺)、臥室(附陽臺)、臥室、衛生間、露臺
閣 樓:涼亭、儲藏間
二層帶閣樓小別墅

編號: DC0356
結構形式: 磚混結構
主體造價: 28-33萬
開間: 13.2米 進深: 11.3米
占地面積: 138平方米
建筑面積: 314.53平方米
首層戶型:

二層戶型:

一 層:走廊、門廳、客廳、臥室(附衛生間)、廚房、餐廳、衛生間、儲物間
二 層:起居室、臥室(附衛生間,陽臺)、臥室(附陽臺)、臥室、書房、衛生間
閣 樓:2臥室、儲物間
歐式四層豪華別墅

編號: DC0344
結構形式: 框架結構
主體造價: 50萬以上
開間: 13.2米 進深: 15.1米
占地面積: 179.10平方米
建筑面積: 703.30平方米
首層戶型:

二層戶型:

三層戶型:

四層戶型:

一 層:門廳、客廳(中空)、臥室(附衛生間)、2臥室、廚房、餐廳、衛生間
二 層:起居室、休息區(附陽臺)、臥室(附衛生間)、臥室(附陽臺)、2臥室、衛生間
三 層:起居室、臥室(附書房,衣帽間,衛生間)、臥室(附衣帽間,內陽臺)、臥室(附陽臺)、2臥室、衛生間
四 層:健身廳、臥室(附衣帽間,內陽臺)、臥室(附露臺)、書房、衛生間、露臺
在農村,一份合理的農村自建別墅設計圖,不僅能把房子建的更加美觀大方,全家人有面子,而且建筑配筋結構更安全同時又經濟適用,施工隊對照圖紙施工還能縮短工期,可謂百利而無一害!
.jpg)
本文由別墅圖紙超市編輯發布,如需了解更多,可登錄網站主頁http://www.titanex.cn/,或者撥打我們的免費電話400-8080-889在線咨詢。
>>>>推薦閱讀:開間14米的大氣別墅,農村自建房就選10款圖紙
>>>>推薦閱讀:造價22萬的9款鄉村別墅,每一棟都精心設計,經典別致!
>>>>推薦閱讀:16款定制設計款農村別墅,花大價錢設計的圖紙到底值不值?











