建房選對戶型很重要,這6款農村別墅圖紙,看完立馬想回村建!
在我們還在辛辛苦苦攢著房子首付的時候,已經有一小部分人,用我們首付的錢,建起了一棟豪華別墅,過上了幸福的生活。相較于城市高額的房價,農村建房的造價要便宜很多,而且在生活環境、居住空間以及生活習慣上,農村自建房都有城市建房無法企及的優點,而農村自建房還有一個最大的特色,那便是創造性,不同于城市套房的千篇一律,在農村建房,每一棟別墅都有專屬于你的特色,只要你想,它便是獨一無二的存在。來看看下面這6款農村別墅,看完你也想回農村建別墅!
新農村三層帶露臺自建房

編號: DC0221
結構形式: 磚混結構
主體造價: 22-28萬
開間: 9.96米 進深: 12.96米
占地面積: 111.68平方米
建筑面積: 305.6平方米
首層戶型:

一 層:客廳、2臥室、廚房、餐廳、衛生間
二 層:客廳、3臥室、書房、衛生間、陽臺
三 層:3臥室、書房、衛生間、露臺
三層歐式小別墅

編號: DC0288
結構形式: 框架結構
主體造價: 40-45萬
開間: 13.5米 進深: 10.7米
占地面積: 137.48平方米
建筑面積: 382.95平方米
首層戶型:

一 層:玄關、客廳、臥室、棋牌室、廚房、餐廳、衛生間
二 層:起居室、休息區、客廳、3臥室、衛生間、露臺
三 層:起居室、娛樂區、2臥室、衛生間、2露臺
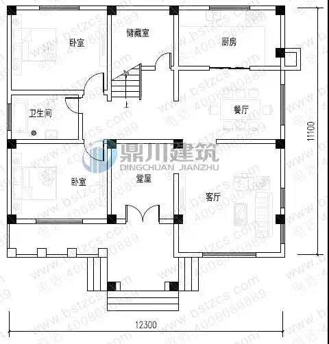
二層帶露臺農村別墅

編號: DC0287
結構形式: 框架結構
主體造價: 25-30萬
開間: 12.3米 進深: 11.1米
占地面積: 130平方米
建筑面積: 295.19平方米
首層戶型:

一 層:走廊、堂屋、客廳、2臥室、廚房、餐廳、衛生間、儲藏室
二 層:客廳(附露臺)、臥室(附書房,露臺)、臥室(附露臺)、臥室、衛生間
三層農村歐式別墅

編號: DC0055
結構形式: 磚混結構
主體造價: 40-45萬
開間: 15.6米 進深: 10.3米
占地面積:143.38平方米
建筑面積:435.4平方米



一 層:堂屋、客廳、臥室(附衛生間)、廚房、餐廳、衛生間、車庫
二 層:起居室、臥室(附陽臺)、臥室(附衛生間)、2臥室、衛生間、陽臺
三 層:起居室、娛樂廳、臥室(附衛生間)、書房(附陽臺)、衛生間、露臺
二層帶車庫露臺農村自建房

編號: DC0362
結構形式: 磚混結構
主體造價: 26-30萬
開間: 17.1米 進深: 10.2米
占地面積: 181.49平方米
建筑面積: 341.34平方米
首層戶型:

二層戶型:

一 層:門廳、客廳、臥室(附衛生間)、臥室、廚房、餐廳、衛生間、車庫
二 層:臥室(附衛生間)、臥室(附露臺)、2臥室、衛生間、露臺
農村三層帶露臺小別墅

編號: DC0388
結構形式: 磚混結構
主體造價: 32-40萬
開間: 11.4米 進深: 11.58米
占地面積: 125.43平方米
建筑面積: 356.42平方米



一 層:門廳、客廳、臥室(附衛生間)、娛樂室、儲藏室、廚房、餐廳、衛生間
二 層:起居廳、書房(附露臺)、臥室(附衛生間)、2臥室、衛生間
三 層:活動室、2臥室、衛生間、露臺
城市購房自然有城市購房的優點,但相較而言,農村自建房的流行已經成為時代的趨勢,看了這6款農村別墅,是不是也想回農村建房子了呢?
.jpg)
本文由別墅圖紙超市編輯發布,如需了解更多,可登錄網站主頁http://www.titanex.cn/,或者撥打我們的免費電話400-8080-889在線咨詢。
>>>>推薦閱讀:農村建房不知道選哪款圖紙?這20套別墅為農村生活量身定制!
>>>>推薦閱讀:10套占地130平農村別墅,二層三層都有,下半年建房不愁了!
>>>>推薦閱讀:造價22萬的9款鄉村別墅,每一棟都精心設計,經典別致!











