三款自建房別墅圖紙,拯救想建房卻猶豫不決的
最近很多人給小編留言,想要建一套房子,可是拿不住建幾層,建成什么樣式。今天小編給大家分享三套賣的最火的自建別墅圖紙,一層,二層,三層的效果圖和建成實物都有,希望能幫到想建房卻猶豫不決的你!
最火一層別墅效果圖
.jpg)
一般來講,農村家庭人口數不多的話,蓋棟單層小戶型是最劃得來的,既節省造價,又方便生活。這套一層帶閣樓的自建別墅,編號: DC0189,結構形式是磚混結構,開間14.04米 ,進深11.34米,占地面積144.36平方米,建筑面積210.69平方米,主體造價: 16-20萬
戶型圖:
.jpg)
一 層:客廳、臥室(附衛生間)、2臥室、廚房、餐廳、衛生間
閣 樓:臥室、雜物間
圖紙購買地址:http://www.titanex.cn/goods-189.html
建成實物圖1
.jpg)
該建房案例位于湖北荊州??傇靸r32萬左右。從毛坯主體到外墻裝飾再到室內裝修及家具,共花費32萬元。據該客戶介紹,除了外墻采用的文化石價格稍微貴了一點,其他都是在網上采購的。
建成實物圖2
.jpg)
這套房子,在原有的圖紙上做了一些改動,加了一個車庫,車庫上做了一個大露臺。
建成實物圖3
.jpg)
這是三個建成實物中和效果圖還原度最高的一套,紅色墻面和白色的窗子搭配很經典。
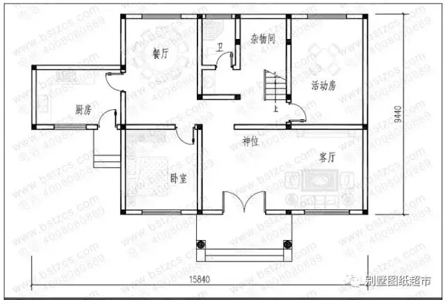
最火二層別墅效果圖
.jpg)
2層的自建房只要找到合適的設計,照樣很大氣,一點不比高層小氣,這套別墅外觀效果建出來大氣精致,其窗套、欄桿和羅馬柱凸顯了整個房子大方的氣質,提升了整個自建房的格調。編號DC0017,結構形式也是磚混結構,開間15.84米,進深9.44米,占地面積134.8平方米,建筑面積225.6平方米,主體造價在18-22萬。
首層戶型圖:
.jpg)
一 層:客廳、臥室、活動房(或臥室)、廚房、餐廳、雜物間、衛生間
二 層:4臥室、衛生間、露臺
圖紙購買地址:http://www.titanex.cn/goods-017.html
建成實物圖1
.jpg)
這套建筑采用坡屋頂和平屋頂相結合,紅色水泥瓦,米黃色墻面,房間尺度設計適宜,空間利用率高,各使用空間都有較好的采光通風。
建成實物圖2
.jpg)
該案例是戶主在原圖的基礎上做了改動,把獨立廚房從左邊移到了右邊,還有屋頂也改動了,總體感覺還是挺不錯的。
建成實物圖3
.jpg)
一層褐色的文化石將房子裝點的很精致,與二層的淺黃色的涂料層次分開來,既緩和了文化石的厚重感又讓房子更顯亮麗。
最火三層自建別墅效果圖
.jpg)
這款戶型暖色調的外墻,大量的落地窗給人呈現一種雅致大氣的美感,外窗還利用弧形的元素來柔化建筑的方正感,紅色的屋頂采用了比較受歡迎坡屋頂的設計,有利于排水隔熱,美觀又實用;提升了建筑整體的明艷度。圖紙編號DC0179,框架結構,開間14.34米,進深14.045米,占地面積154.33平方米,建筑面積332.28平方米,主體造36-42萬。
首層戶型圖:
.jpg)
一 層:客廳(中空)、臥室(附衛生間)、臥室、棋牌室、廚房、餐廳、衛生間
二 層:起居室、臥室(附衣帽間,衛生間)、2臥室、衛生間
三 層:家庭影院(附露臺)、臥室、洗衣房、露臺
圖紙購買地址:http://www.titanex.cn/goods-179.html
建成實物圖1
.jpg)
此款建房案例可以說還原了效果圖,將原本效果圖那種端莊雅致的氣質凸顯得淋漓盡致,從外觀的窗戶設計來看,室內采光效果特別好,和效果圖有所不同的在于外墻裝飾。效果圖外墻設計精美,建成圖外墻裝飾簡約時尚,不累贅。但是同樣大氣不失尊貴。
建成實物圖2
.jpg)
此款案例和前一款案例在外墻裝飾來說有點類似,同樣是深色的一層外墻加上淺色的二層外墻,再加上金色山花的點綴,讓房子整體很生動,極具靈氣。
建成實物圖3
.jpg)
此款案例采用的是比較沉穩的色調,一層采用的是文化石,讓房子多了一種古韻的氣質,配上棕褐色的涂料,既不突兀又凸顯了層次感。配上深色系列的窗套和玻璃。有一種低調的奢華感。
還等什么呢?看中趕快選擇一套開建吧!
.jpg)
本文由別墅圖紙超市編輯發布,如需了解更多,可登錄網站主頁http://www.titanex.cn/,或者撥打我們的免費電話400-8080-889在線咨詢。
>>>>推薦閱讀:5套一層自建別墅,15萬拿下,戶型好到村里人搶著建!
>>>>推薦閱讀:10款農村別墅施工案例,每一款都讓人驚艷
>>>>推薦閱讀:18萬建個二層的實用小別墅,農村建房首選戶型











