隨著時代與經濟的發展,城市房價的飛速上漲,很多人躋身北上廣深,花百萬都買不來一套房,甚至淪為房奴。放眼現在的鄉村,自建房越來越美觀、設計感越來越強,十足的別墅即視感。那些單調的農村紅磚房即將成為歷史,取而代之的,是越來越多的,設計別致、外觀亮麗的獨棟別墅。建房如人生,有規劃的人生,往往更成功更明朗更順暢。建房也是如此,按照自己的喜好選擇自己中意的設計圖紙,一切都在掌控之中!
不管你是喜歡歐式浪漫風,還是喜歡美式鄉村風,趕緊來看看下面這二十款圖紙吧!鼎川建筑專業設計師傾心力作,經典大氣!“效果圖+平面圖+客戶實際案例”,讓您更直觀的了解我們的圖紙,別墅實景與效果圖一一對應。專業,專注!

二十款經典農村別墅設計圖紙(效果圖+真實案例):
農村別墅圖紙一:
規格:13.3米×14.6米
占地面積:147.7平方米
圖紙編號:DC0001
.jpg)

.jpg)
三層帶車庫別墅戶型圖,簡單大氣中又帶有一種歐式建筑的典雅。露臺的設計也讓整個外觀增添了不少美感。
農村別墅圖紙二:
規格:15.84米×9.44米
占地面積: 134.8平方米
圖紙編號:DC0017
.jpg)
.png)
.jpg)
簡約經典的二層農村小別墅,布局合理,空間利用率高。中規中矩的戶型,沒有任何多余的裝飾,給人視覺上十分舒服的體驗。
農村別墅圖紙三:
規格:11.5米×10.5米
占地面積:121.03平方米
圖紙編號:DC0028
.jpg)
.png)

經典時尚的三層別墅設計圖紙,二樓露臺的設計讓人眼前一亮,同時布局緊湊合理,有多個房間設計,是很多建房朋友的居家之選!
農村別墅圖紙四:
規格:12.04米×8.84米
占地面積: 103.4平方米
圖紙編號:DC0049
.jpg)
.png)
.jpg)
歐式風格與現代簡約元素完美結合,使整套別墅既有浪漫典雅的一面,又有簡潔大氣的一面,很好地滿足了人們的生活品味與審美觀。
農村別墅圖紙五:
規格:11.7米×12.9米
占地面積:120.1平方米
圖紙編號:DC0080
.jpg)
.png)
.jpg)
獨特的外觀設計,加上大氣高貴的整體感覺,給人一種強大的視覺沖擊感,多露臺的設計透漏著一種悠閑而浪漫的氣息。
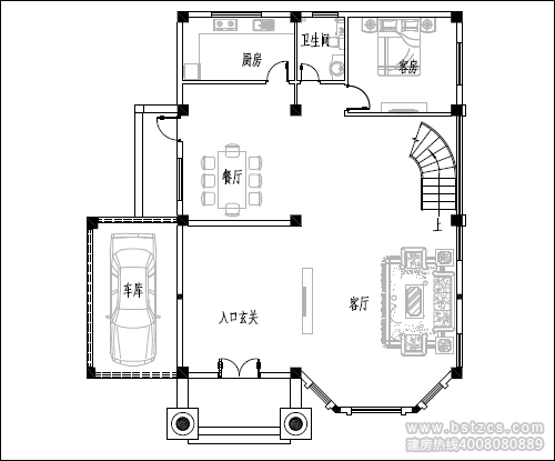
農村別墅圖紙六:
規格:13.2米×12.8米
占地面積:170.38平方米
圖紙編號:DC0111
.jpg)
.png)
.jpg)
時尚而復古的外觀,加上外立面的弧形設計,讓這套別墅極具美感。在農村建一棟這樣的別墅,絕對可以吸引眾多眼球呢!客戶在建房過程中做了一點點修改,白色的欄桿搭配紅色的外墻,顯得清新而亮麗。
農村別墅圖紙七:
規格:15.6米×10.3米
占地面積: 143.38平方米
圖紙編號:DC0149
.jpg)
.png)
.jpg)
大氣的歐式風格別墅,大氣中不失細節的裝飾,從整體到布局都得到了合理的安排,設計感十足,時尚有看點。
農村別墅圖紙八:
規格:14.34米×11.34米
占地面積: 157.59平方米
圖紙編號:DC0159
.jpg)
.png)

大門入口處的羅馬柱成為點睛之筆,車庫和露臺的設計也為整套別墅增添了不少美感。
農村別墅圖紙九:
規格:13.14米×11.84米
占地面積:130平方米
圖紙編號:DC0179
.jpg)
.png)
.jpg)
低調奢華的現代歐式風,恰到好處的歐式構件點綴其中,使整體感覺多了幾分靈動。一樓圍欄與頂樓露臺的設計,一種歐式皇家莊園的感覺呼之欲出。
農村別墅圖紙十:
規格:13米×10.6米
占地面積:137.9平方米
圖紙編號:DC0186
.jpg)
.png)
.jpg)
看似左右對稱卻又在細節上各有特點的設計,使得整套別墅給人一種莊重大氣卻又不失靈動可愛的感覺。門頭的設計簡單大氣,不一樣的窗戶設計,在整體視覺上給人一種精致而又獨特的味道。
農村別墅圖紙十一:
規格:14.04米×11.34米
占地面積:153.41平方米
圖紙編號:DC0189
.jpg)
.png)

經典大方的一層別墅,雖是一層,但簡單大方的外觀,加上閣樓的設計,讓很多建房朋友對它十分青睞!
農村別墅圖紙十二:
規格:9.9米×14.2米
占地面積: 116.54平方米
圖紙編號:DC0193
.jpg)
.jpg)
.jpg)
深褐色加淺黃色的外墻顏色搭配,是現在十分受青睞的一種外墻顏色。大氣中又顯出幾分高貴,簡單卻又透出一種低調的奢華。沒有多余的裝飾,一切卻顯得恰到好處,渾然天成!
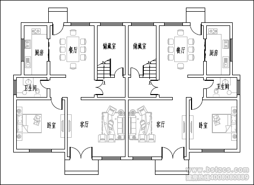
農村別墅圖紙十三:
規格:18米×10.8米
占地面積: 191.4平方米
圖紙編號:DC0206
.jpg)
.png)

兩層半雙拼別墅,大氣經典,布局合理,空間利用率高,適合人口比較多的家庭。
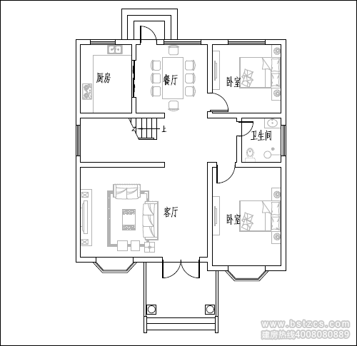
農村別墅圖紙十四:
規格:11.4米×10.3米
占地面積:105.95平方米
圖紙編號:DC0207
.jpg)
.png)
.jpg)
現代簡約風格,寬敞明亮、通透干練。摒棄一切復雜冗余的裝飾物,很好地將功能性裝飾性與實用性融為一體。
農村別墅圖紙十五:
規格:11.7米×12米
占地面積:138.16平方米
圖紙編號:DC0219
.jpg)
.png)

時尚清新的外觀風格,別致的窗戶、古典大氣的羅馬柱,讓整套別墅盡顯美感!
農村別墅圖紙十六:
規格:9.96米×12.96米
占地面積: 111.68平方米
圖紙編號:DC0221
.jpg)
.png)

三層農村別墅,白色的露臺使整個外觀瞬間亮麗了起來;白色的窗戶和欄桿,朱紅色和淺黃色混搭的外墻,顯得大氣,卻又充滿了活力。
農村別墅圖紙十七:
規格:11.7米×11.1米
占地面積:125.93平方米
圖紙編號:DC0229
.jpg)
.png)
.jpg)
明亮的落地窗、羅馬柱下的入戶花園、以及陽臺的設計,讓人聯想到一種閑適雅靜的恬淡生活。好的建筑是什么?好的建筑就是不僅能讓你住著舒服,更能讓你從視覺上就聯想到一種美好的生活方式!
農村別墅圖紙十八:
規格:11.7米×11.2米
占地面積:130.04平方米
圖紙編號:DC0232
.jpg)
.png)
.jpg)
極具歐式風格的一套別墅,將生活的浪漫主義展現的淋漓盡致。窗戶、羅馬柱的設計都是點睛之筆。兩個字,完美!
農村別墅圖紙十九:
規格:10.8米×12.1米
占地面積: 133.26平方米
圖紙編號:DC0250
.jpg)
.png)
.jpg)
明亮的大落地窗、二樓的露臺、入口的羅馬柱,讓人聯想到一種優雅恬淡的生活方式。中西結合的外觀設計恰到好處,一半現實主義一半浪漫主義,絕對是居家之選!
農村別墅圖紙二十:
規格:14米×8米
占地面積: 115.12平方米
圖紙編號:DC0256
.jpg)
.png)
.jpg)
緊湊合理的布局、車庫露臺的設計、門頭的羅馬柱,一切看起來都那么融洽!外墻底部由文化石堆砌而成的墻角,是整套別墅的視覺亮點,是復古與現代氣息的碰撞,流露出一種交相輝映的復古浪漫氣息!
(以上案例均為客戶真實施工案例,因客戶需求不同,可能會在施工過程中進行一定的更改,所建成的效果可能會與圖紙效果有所差異。)
.jpg)
本文由鼎川建筑發布,如果還有更多相關問題需要了解的,可登錄網站主頁http://www.titanex.cn/了解,或者撥打我們的免費電話400-8080-889在線咨詢。
注:本文所有文字和圖片均屬于鼎川建筑版權所有,如需轉載,請注明出處。
>>>>推薦閱讀:令木地板“短命”的“十六宗罪”
>>>>推薦閱讀:農村別墅為什么選擇雙拼建筑?
>>>>推薦閱讀:農村建房防潮措施這些你都知道嗎?